![]() |
![]() |
![]() |
你了解無軸螺旋輸送機嗎?發布日期:2022/5/13 類別:公司新聞 瀏覽量: 5023 次 無軸螺旋輸送機簡介
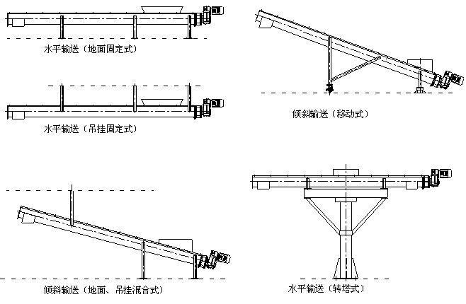
湖州亞杭環保生產的無軸螺旋輸送機是根據建材、化工、環保、電力、醫藥、冶金、食品等行業在采用LS型、GX型號螺旋輸送機輸送磨琢性大、粘性較大,易結塊,易纏繞物料時形成物料堵塞,吊軸承損壞使螺旋機不能正常工作的實際情況而自主研制開發的一種新型螺旋輸送機。本產品適用于連續均勻輸送較松散的、有粘性的、易纏繞物料,輸送物料溫度zui高可達100℃,zui大傾角小于45°。
無軸螺旋輸送機設備組成 本產品主要由驅動裝置、頭部裝配、機殼、無軸螺旋體、槽體襯板、進料口、出料口、機蓋(需要時)、底座等組成。 1、驅動裝置:采用擺線針輪輪減速機或軸裝式硬齒面齒輪減速機,設計時應盡可能將驅動裝置設在出料口端,使螺旋體在運轉時處在受拉狀態。 2、頭部裝配有推力軸承,可承受輸送物料時產生的軸向力。 3、機殼:機殼為U型或O 型,上部加防雨型機蓋,材質有不銹鋼或碳鋼或玻璃鋼。 4、無軸螺旋體:材質為不銹鋼或碳鋼。 5、槽體襯板:材質為耐磨的塑料板或橡膠板或鑄石板等。 6、進、出料口:有方形和圓形兩種,一般進、出料口形式由用戶決定。
優勢特點 無軸螺旋輸送機與傳統有軸螺旋輸送機相比,由于采用了無中心軸、吊軸承設計,利用具有一定柔性的整體鋼制螺旋推送物料,因而具有以下突出優點: 1、螺旋具有超強耐磨性和耐用性,使用壽命長。 2、抗纏繞性強:無中心軸干擾,對于輸送帶狀、易纏繞物料有特殊的優越性,防止阻塞引起事故。 3、環保性能好:采用全封閉輸送和易清洗的螺旋表面,可以保證環境衛生和所輸送物料不受污染、不泄漏。 4、扭距大、能耗低:由于螺旋無軸、物料不易堵塞,因而可以較低速度運轉,平穩傳動,降低能耗。 5、輸送量大:輸送量是相同直徑傳統有軸輸送機的1.5倍,zui大達40m3/h。輸送距離長,可達25米,并可以根據用戶需要,采用多級串聯式安裝,超長距離輸送物料。 6、結構緊湊,操作簡便,經濟耐用,維護量極少,維護費用低。
技術參數選型
設備安裝、調試及運行 1、設備安裝要求: a、進、出料口現場安裝應使進出料口的法蘭支撐面與螺旋機的本體軸線平行;與相連接的法蘭應緊密貼合不得有間隙。 b、螺旋機裝好以后應檢查減速機是否加足潤滑油、若未加則加足之,其后進行無負載試車;在進行連續半小時以上試運轉后,檢查螺旋機裝配的正確性,發現問題應立即停機,處理后再運轉,直至處于良好運行狀態為止。 c、螺旋機運轉應平穩可靠,緊固件無松動現象。減速器無滲油、無異常聲,電氣設備安全可靠。
2、設備使用要求: a、螺旋機應無負荷起動,即在機殼內沒有物料時起動,起動后方能向螺旋機給料。 b、螺旋機初始給料時,應逐步增加給料量直至達到額定輸送能力,給料應均勻,否則容易造成輸送物料的積塞,驅動裝置的過載,使整臺機器損壞。 c、為了保證螺旋機無負荷起動的要求,輸送機在停車前應停止加料,等機殼內物料完全輸送完畢后方可停止運轉。 d、被輸送物料內不得混入堅硬的大塊物料,避免螺旋卡死而造成螺旋機的損壞。 e、在使用中經常檢測螺旋機各部分的工作狀態、注意各緊固件是否松動,如果發現機件松動,則應立即擰緊螺釘,使之重新堅固。 f、螺旋機的機蓋在機器運轉時不應該取下,以免發生事故。
上一條:螺旋輸送機廠家哪里找?螺旋輸送機哪家的質量好 |
||||||||||||||||||||||||||||||||||||||||||||||||